地 址: 河南省巩义市西村工业区
联系人: 庞经理
手 机: 15617617287
15038001853
E_mail: gyltgd@126.com
http://www.gyltgdc.com/

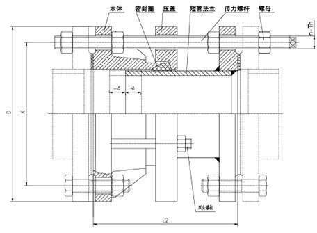
CF型单法兰松套传力接头适用于一这与法兰连接,一这与管道焊接。安装时调节产品两端与管道或法兰的安装长度,安装和焊接完毕后,对角依次均匀拧紧压盖螺栓,使其成为一个整体,并有一定的位移量,方便安装维修时,根据现场尺寸进生调整。在工作时可以把轴向推力传递至整个管道。
CF型单法兰松套传力接头性能特点:
松套传力接头是在法兰松套补偿接头的基础上增设法兰短管及传力螺杆而成,次类型的补偿接头与松套补偿接头和松套限位补偿接头不同的是它的补偿量是指在安装及拆卸过程中的调节量,一旦将所有的螺母拧紧,它是刚性连接的,可以传递轴心力,从而保护阀门、泵等设备。
传力接头是泵、阀门等设备与管道连接的新产品,通过全螺栓把
它们连接起来,使其成为一个整体,并有一定的位移量,这样就可以在安装维修时,根据现场安装尺寸进行调整,在工作时,可以把轴向推力传还至整个管道。这样不仅提高工作效率,而切对泵、阀们等设备起到一定保护作用。
CF型单法兰松套传力接头是有松套伸缩接头和短管法兰、传力螺杆等构件组成,它能传递被连接件的压力推力(盲板力)和补偿管路误差,不能吸收轴向位移。重要用于泵、阀门、管路等附件的松套连接。
CF型单法兰松套传力接头优点:
1.安装简单方便、方便阀门安装、可承受管线的轴向拉力。
2.该产品采用金属铸造或焊接组成,松套部位选用梯形橡胶密封圈,在压盖和螺栓的作用下。
3.利用橡胶压缩弹性变形原理。迫使密封圈变形于接头本体伸缩管外壁之间进行静密封。
4.金属和密封圈严格按使用性能及用户要求选用。材质外部涂装高强度防腐漆料,各部连接螺栓为高强度碳钢或不锈钢制作。因为本体与伸缩管之间有一定间隙,使它具有一定的轴向和径向位移。
5.在管道中能有效的补偿和缓解管道和盲板推力,又能便于水泵,阀门的安装维修更换,实为管道安装运行业中最为理想的配套产品。
CF型单法兰松套传力接头使用范围:
1.因为该系列产品属金属制造品,其有较高的抗拉和抗压强度,软密封性能优越,装卸方便等功能,常被应用于电力,冶金。
2.给排水和污水处理等行业,主要作用于水泵与阀门和管道之间的连接。
3.它在管道运行中有一定的多向位移作用,可以缓解管道运行中的盲板推力,对管道起到一定保护作用,特别是对管道的安装和维修提供了极大的便利,但是在水泵出口处和管道转角处应采用传力接头,因为传力接头通过传力螺栓(即全丝螺栓)能把启泵时的盲板推力传导到泵和管道各部位,避免推力集中于管道或泵的近端发生冲击力损伤设备。
CF型单法兰松套传力接头安装简要说明:
CF型单法兰松套传力接头适用于一这与法兰连接,一这与管道焊接。安装时调节产品两端与管道或法兰的安装长度,安装和焊接完毕后,对角依次均匀拧紧压盖螺栓,使其成为一个整体,并有一定的位移量,方便安装维修时,根据现场尺寸进生调整。在工作时可以把轴向推力传递至整个管道。

技术参数:
公称通经:DN50-DN3200
工作压力:0.6-1.6MPA
使用介质:水、污水
密封材料:NBR
制造标准:GB12465-2007
|
序号
|
名称
|
数量
|
材料
|
|
1
|
本体
|
1
|
QT400-15、Q235A、ZG230-450、20
|
|
2
|
密封圈
|
1
|
NBR
|
|
3
|
压盖
|
1
|
QT400-15、Q235A、ZG230-450、20
|
|
4
|
短管法兰
|
1
|
Q235A、20、16Mn
|
|
5
|
螺柱
|
n
|
Q235A、35、1Cr18Ni9Ti
|
|
6
|
螺母
|
5n
|
Q235A、20、1Cr18Ni9Ti
|
|
公称通径DN |
管子外径 |
外形尺寸 |
法 兰 连 接 尺 寸 |
|||||||||
|
L |
△L |
0.6MPa |
1.0MPa |
|||||||||
|
Dw
|
|
D |
D1 |
n-Th |
b |
D |
D1 |
n-Th |
b |
|||
|
65
|
76 |
76 |
400 |
40 |
160
|
130
|
4-M12
|
16
|
185 |
145 |
4-M16
|
20
|
|
80
|
89
|
89
|
190
|
150
|
4-M16
|
18
|
200 |
160 |
8-M16
|
22
|
||
|
100
|
114
|
114
|
210
|
170
|
220 |
180 |
24
|
|||||
|
125
|
140
|
140
|
240
|
200
|
8-M16
|
20
|
250 |
210 |
26
|
|||
|
150
|
168
|
168
|
265
|
225
|
285 |
240 |
8-M20
|
|||||
|
200
|
219
|
219
|
320
|
280
|
22
|
340 |
295 |
28
|
||||
|
250
|
273
|
273
|
375
|
335
|
12-M16
|
24
|
395 |
350 |
12-M20
|
|||
|
300
|
325
|
325
|
420 |
50 |
440
|
395
|
12-M20
|
24
|
445 |
400 |
12-M20
|
28
|
|
350
|
377
|
377
|
490
|
445
|
26
|
505 |
460 |
16-M20
|
30
|
|||
|
400
|
426
|
426
|
540
|
495
|
16-M20
|
28
|
565 |
515 |
16-M24
|
32
|
||
|
450
|
480
|
480
|
595
|
550
|
615 |
565 |
20-M24
|
32
|
||||
|
500
|
530
|
530
|
645
|
600
|
20-M20
|
30
|
670 |
620 |
34
|
|||
|
600
|
630
|
630
|
440 |
755
|
705
|
20-M24
|
780 |
725 |
20-M27
|
36
|
||
|
700
|
720
|
720
|
860
|
810
|
24-M24
|
32
|
895 |
840 |
24-M27
|
40
|
||
|
800
|
820
|
826
|
600 |
60 |
975
|
920
|
24-M27
|
34
|
1015 |
950 |
24-M30
|
44
|
|
900
|
920
|
926
|
1075
|
1020
|
24-M27
|
36
|
1115 |
1050 |
28-M30
|
46
|
||
|
1000
|
1020
|
1026
|
1175
|
1120
|
28-M27
|
1230 |
1160 |
28-M33
|
50
|
|||
|
1200
|
1220
|
1226
|
620 |
1405
|
1340
|
32-M30
|
40
|
1455 |
1380 |
32-M36
|
56
|
|
|
1400
|
1420
|
1428
|
1630
|
1560
|
36-M33
|
44
|
1675 |
1590 |
36-M39
|
62
|
||
|
1600
|
1620
|
1628
|
630 |
1830
|
1760
|
40-M33
|
48
|
1915 |
1820 |
40-M4
|
68
|
|
|
1800
|
1820
|
1828
|
2045
|
1970
|
44-M36
|
50
|
2115 |
2020 |
44-M45
|
70
|
||
|
2000
|
2020
|
2030
|
650 |
2265
|
2180
|
48-M39
|
54
|
2325 |
2230 |
48-M45
|
74
|
|
|
2200
|
2220
|
2230
|
2475
|
2390
|
52-M39
|
60
|
2550 |
2440 |
52-M52
|
80
|
||
|
2400
|
2420
|
2430
|
2685
|
2600
|
56-M39
|
62
|
2760 |
2650 |
56-M52
|
82
|
||
|
2600
|
2620
|
2630
|
750 |
80 |
2905
|
2810
|
60-M45
|
64
|
2960 |
2850 |
60-M52
|
88
|
|
2800
|
2820
|
2830
|
3115
|
3020
|
64-M45
|
68
|
3480 |
3070 |
64-M52
|
94
|
||
|
3000
|
3020
|
3030
|
3315
|
3220
|
68-M45
|
70
|
3405 |
3290 |
68-M56
|
|
||